اختصاصی پایگاه خبری فضای نو : رسانه تخصصی طراحی داخلی
| نام پروژه: | مسکونی در تو |
| آدرس دقیق پروژه: | مشهد – بلوار سید رضی |
| نام شرکت مشاور و یا دفتر معماری: | دفتر معماری برساو |
| معمار / معماران مسئول: | محمد ریحانی – علیرضا مدرسی |
| تاریخ شروع و اتمام اجرا: | ۱۳۹۸-۱۴۰۰ |
| مساحت سایت پروژه: | ۲۵۰ متر مریع |
| مساحت کل ساخته شده: | ۱۳۰۰ متر مربع |
| نوع ساختمان: | مسکونی |
| مهندس یا مشاور عمران / سازه: | علی بزرگمهر |
| مهندس یا مشاور تاسیسات الکتریکی: | محمد جلالی |
| مهندس یا مشاور تاسیسات مکانیکی: | محمد هادی شریعت پناه |
| مدیر اجرایی پروژه: | محسن عجم |
| تیم اجرایی پروژه: | محسن عجم – حسین محسنی |
| مهندس ناظر / دستگاه نظارت: | علی سویزی |
| طراح سه بعدی : | رسول جهانشیری – احسان فخری بیک |
| گرافیست: | فائزه صمدی – حمیده صرافیان – متینه رضایی – الهام مهدیان-بهاره حاجی زاده |
| عکاس / عکاسان:
(در جدول شماره ۲ با مشخص نمودن عکاسان تصاویر) |
سحر نیک نژاد |
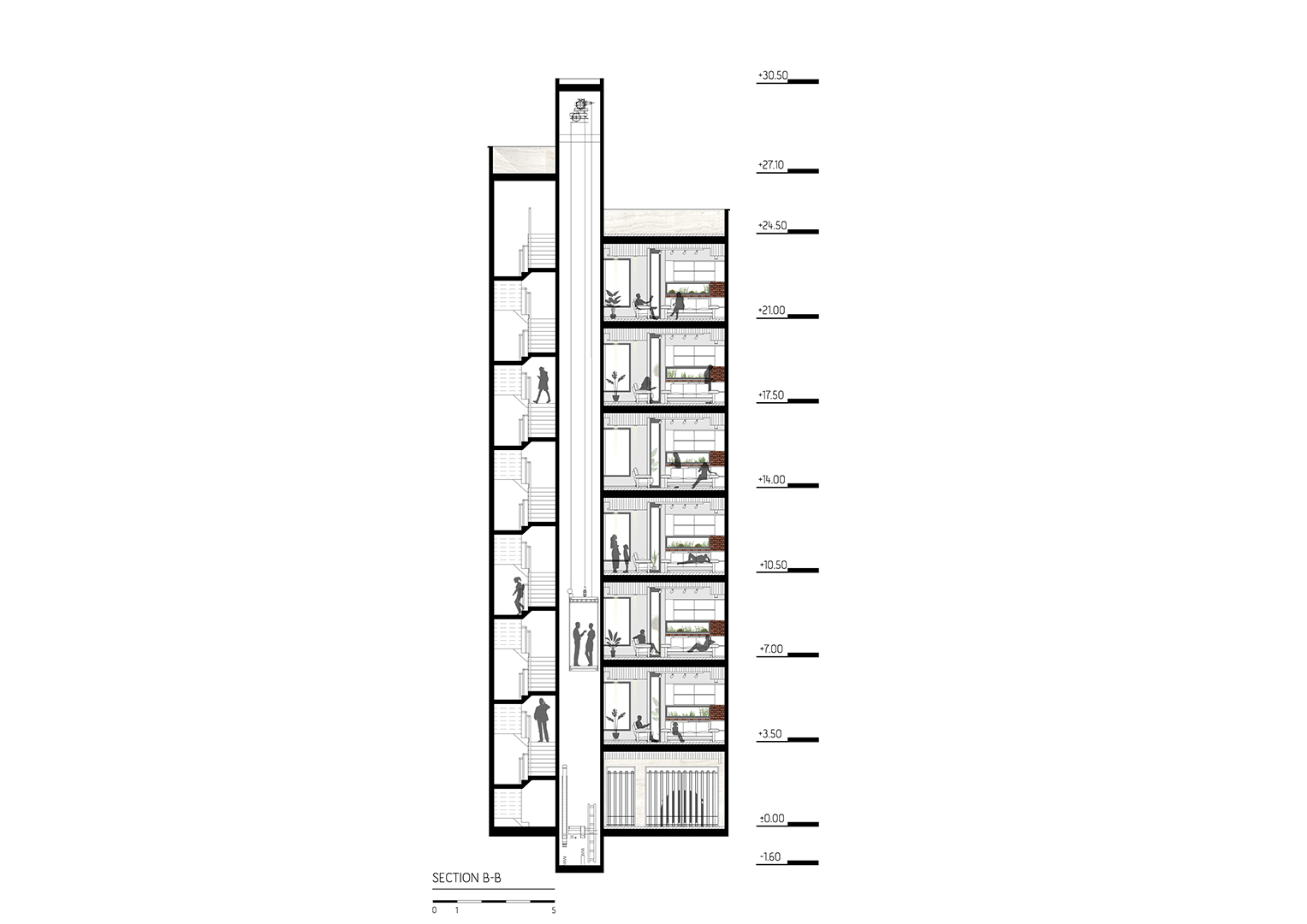
| متن توضیحات پروژه ( از ایده تا اجرا ) | درتو پیوند بین بیرون و درون بنا
استقرار سایت در مقابل مسجدی در مقیاس محله و چند باب تجاری ،حضور و رفت و آمد رهگذران را به دنبال دارد.امری که در ظاهر به مذاق ساکنین پروژه خوش نمی آمد. امکان بهره مندی از نور، تهویه و مناظر بیرون برای ساکنین از یک سو و ارتباط متقابل بنا با بافت اطراف از سوی دیگرنیاز به تعامل را متذکر می شد. در برخورد با اتفاقات بیرونی بنا به دو لایه از حیث ماهیتی تقسیم شد. لایه اول: فضای داخل و ️لایه دوم: ساختار ارتباطی بنا با پیرامون . لایه خارجی برای ایجاد محافظت بیشتر با کمترین میزان بازشو شکل گرفت و لایه داخلی با بیشترین میزان گشودگی جهت تهویه و تامین نور. کشیده شدن لایه بیرونی به داخل فضا و ظاهر شدن لایه داخلی در نما، اولین گام در ایجاد تعامل بین بنا و بافت اطراف بود. ورود فضای سبز نما به داخل فضا و ایجاد حیاط نیز حاصل این انعطاف پذیری بین لایه هاست |

















