اختصاصی پایگاه خبری فضای نو : رسانه تخصصی طراحی داخلی
خانه باغ فلت
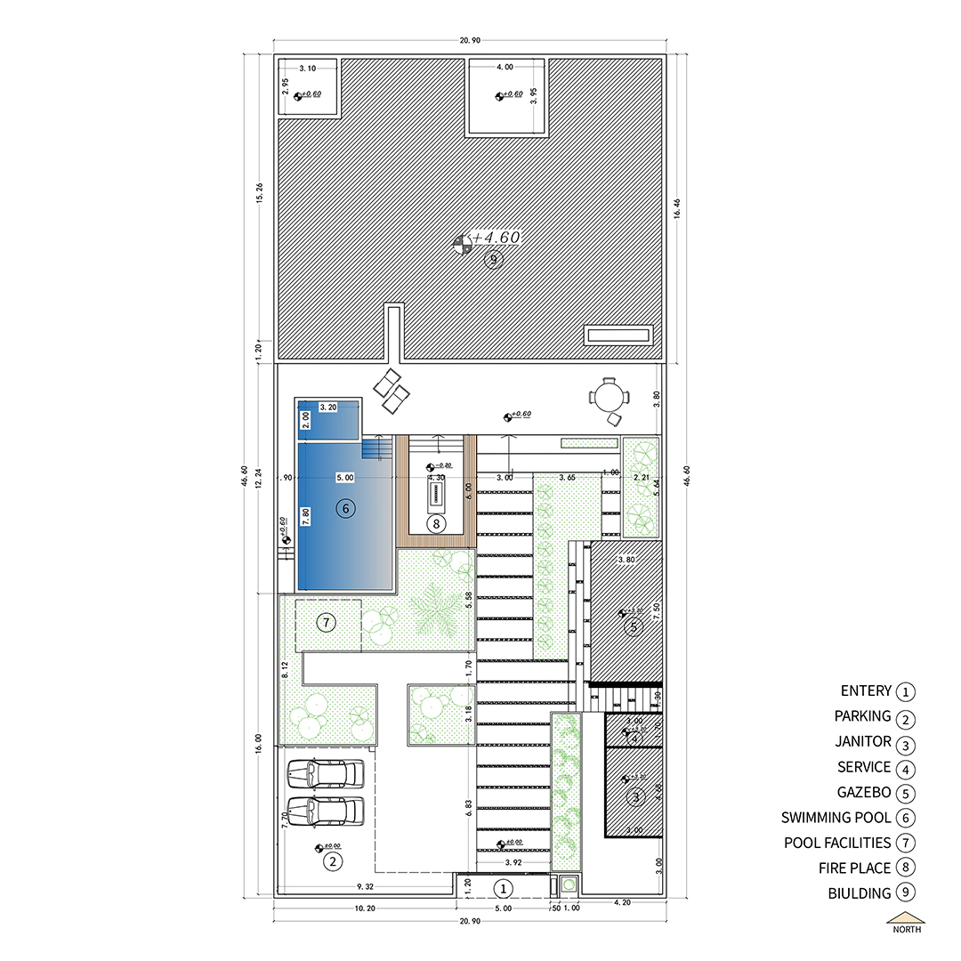
موقعیت: اصفهان، مرق
متراژ: ۱۰۰۰ مترمربع زمین -۳۵۰مترمربع ساخت
سال ساخت: ۱۴۰۳
معماران: سحر حق شناس – سمیرا حق شناس
استودیو معماری پارتاک
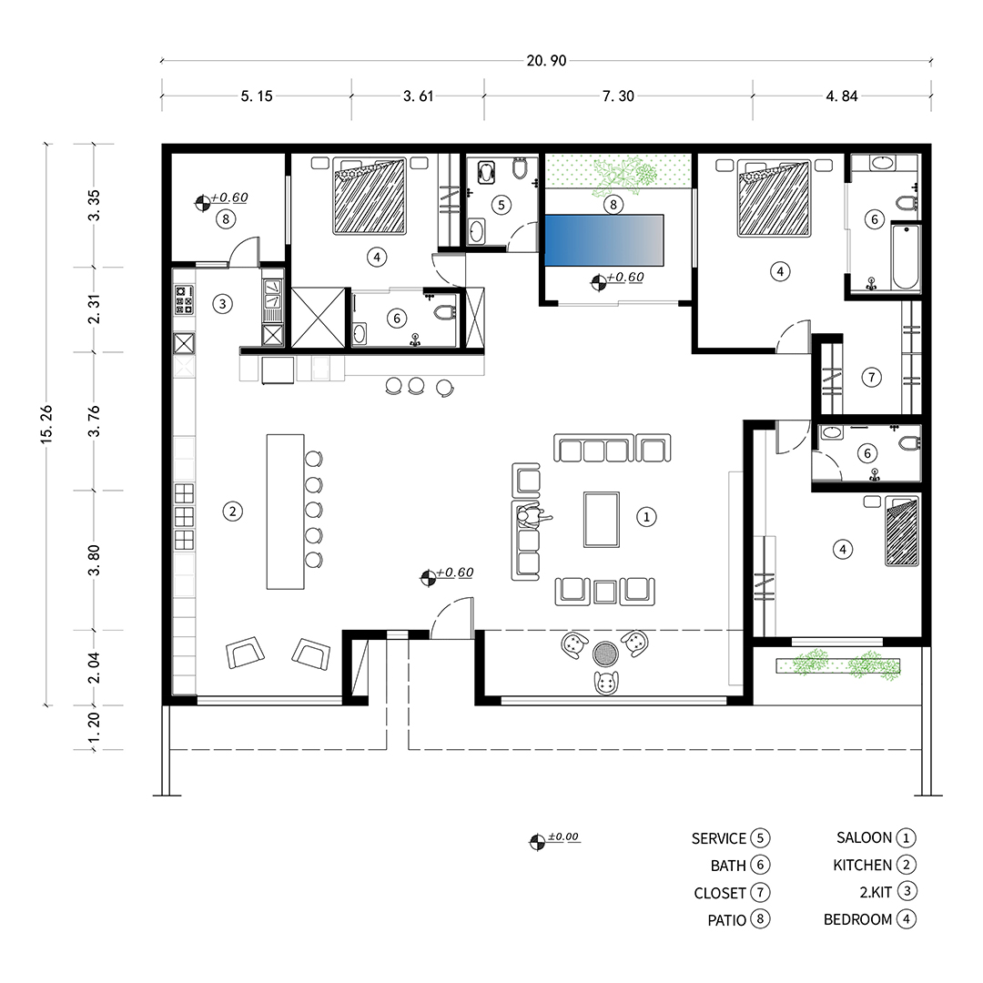
خانه باغ فلت درزمینی به مساحت ۱۰۰۰مترمربع برای خانواده سه نفره ایی که قصد زندگی در محیطی به دور از هیاهوی شهری داشتند، طراحی شد. به دلیل محدودیت های ارتفاعی منطقه مرق اصفهان، ساختمان بصورت فلت طراحی شد تا ازحداکثر مساحت استفاده شود.بادرنظرگرفتن تمامی محدودیتها و خواسته های کارفرما،تقسیم بندی های سه تایی که دارای نظم و ریتم ثابت باشد، بنظر روش مناسبی برای طراحی این ویلا بود. زون بندی های لازم باتوجه به اولویت دیدومنظر، نور و تهویه،محرمیت و آسایش ساکنین انجام شد. به دلیل اینکه نورگیری فقط ازیک سمت جنوبی امکانپذیر بود، فضاهایی مانند مطبخ و اتاق خوابها رابوسیله ایجاد حیاط خلوت درپلان، نوررسانی کردیم. سالن و آشپزخانه در ارتباط مستقیم با حیاط و استخر جانمایی شد و با ایجاد سایبان سرتاسری تابش خورشید را در تابستان کنترل کردیم. شکافهای ایجاد شده در سقف این سایبان، باعث شاخص شدن محل ورودی به ساختمان و ایجاد سایه روشن در هنگام روز گردید گویی که سقف شکافته تا آسمان وارد شود.












